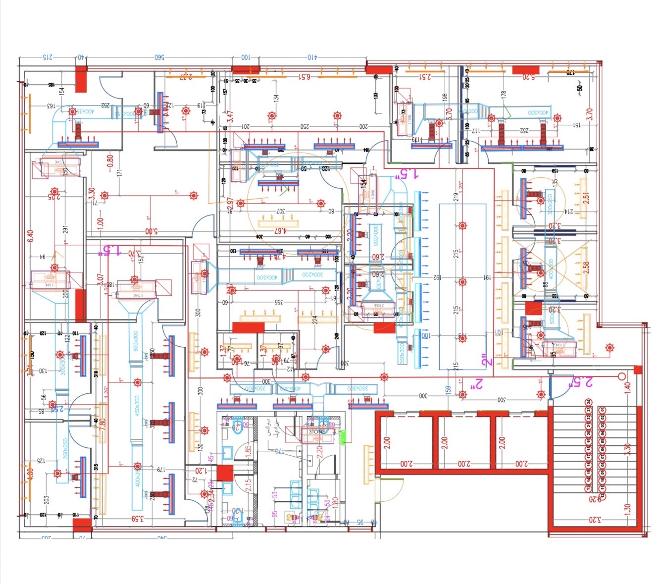
Design and manufacture of abstract air
The design and manufacturing of air ducts involve the complete process of creating ductwork used to transport cold or hot air from the air conditioning system to different parts of the building. These ducts are manufactured using materials such as aluminum, galvanized steel, or plastic, and are designed to fit the building's internal structure to ensure efficient air distribution.
important features















